Hydraulic Pump
Hydraulic Tractor Troubleshooting
Skip to content
Menu
Home
Contact Us
Posted on
March 3, 2022
by
Jack
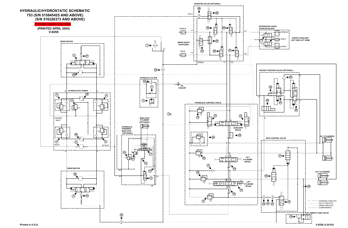
BobCat 753 – HYDRAULIC/HYDROSTATIC SCHEMATIC
Published by
Jack
View all posts by Jack
Post navigation
Prev
BobCat S70 – AUXILIARY HYDRAULIC INTERLOCK VALVE – Disassembly And Assembly
Next
BobCat 753 – CYLINDER (LIFT) – Checking